Bifamiliare in vendita

Gattico, Via Cascinetta
€ 398.000
12 locali 12 locali
470 Mq 470 Mq
4 bagni 4 bagni

Bifamiliare in vendita

Gattico, Via Cascinetta

Descrizione annuncio

Immersa nel verde ma comoda ai principali collegamenti stradali, proponiamo in vendita una splendida villa indipendente situata in Via Cascinetta, nel comune di Gattico-Veruno.

L’abitazione è libera su quattro lati, con un’area di proprietà di circa 2250 mq e ospita due alloggi distinti, ciascuno con ingresso indipendente.

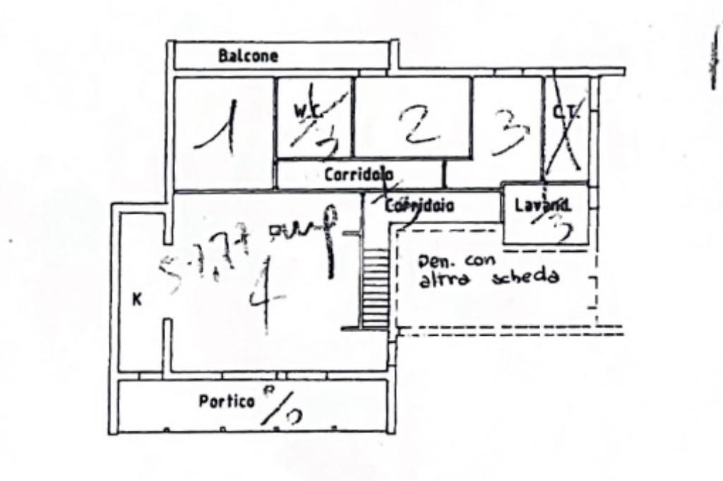
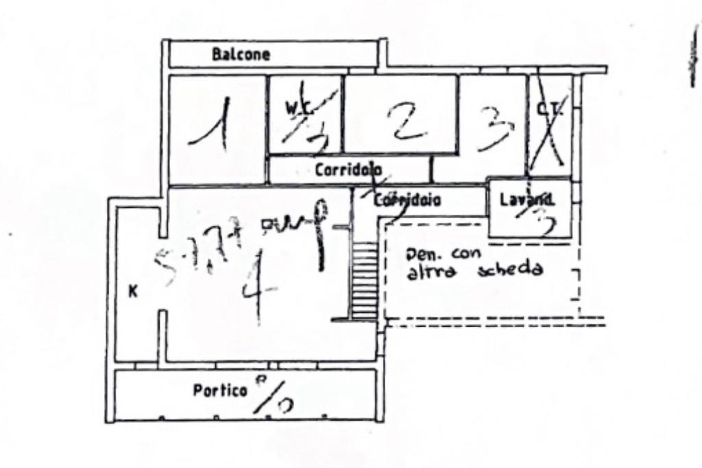
Soluzione piano terra

L’abitazione al piano terra è stata creata negli anni 90, con ottime finiture, infissi in doppio vetro, caldaia a condensazione e finemente disposta su un unico livello. La zona giorno di entrata è di circa 60 mq, spaziosa e luminosa grazie alle sue balconate dirette sul giardino.

Una porta ci accompagna nella zona notte composta da un primo corridoio con camera matrimoniale, due camerette e il primo bagno con vasca idromassaggio. Un secondo bagno con box doccia e un vano caldaia posti su un secondo corridoio, rifiniscono la parte abitativa. Una scala interna ci accompagna al piano inferiore dove è presente un locale ottimo per uso taverna/magazzino o box auto di circa 80 mq, con rampa di accesso diretta sul cortile.

Soluzione piano primo

L’appartamento è posto al piano primo disposto su un unico livello con una sua entrata separata. Le finiture sono allo stato originale ma in ottimo stato di manutenzione. L’ingresso è su un disimpegno, la cucina abitabile e il soggiorno hanno sfogo diretto su un terrazzo di circa 35 mq. Un ripostiglio completa la zona giorno. La zona notte è composta da ben cinque camere letto di cui due con balcone e due bagni, uno con vasca e il secondo con box doccia. Al piano superiore troviamo il sottotetto che riprende il perimetro della casa, con un locale con ottime altezze e un secondo vano utile come ripostiglio. L’alloggio è accessoriato di un locale termico/ripostiglio posto al piano terra.

Un box auto all’interno del giardino è di circa 50 mq.

L’immobile è stato edificato negli anni 80, con facciata completamente rifatta nel 2005, gli impianti sono funzionanti e lo stato di manutenzione ottimo.

Mostra tutto

Nelle vicinanze

Trasporto pubblico Trasporto pubblico
Trasporto pubblico
2,0 Km
Scuole Scuole
Scuola primaria di Gattico
700 m
Scuola Media Eugenio Montale
970 m
Scuola Elementare di Veruno
2,2 Km
Scuola primaria di Maggiate
2,5 Km
Farmacia Farmacia
Farmacia Fanchini
710 m
Farmacia Colombo
2,1 Km
Farmacia Venco
2,6 Km
Ospedali Ospedali
Istituto Scientifico di Riabilitazione di Veruno - Fondazione Salvatore Maugeri
1,7 Km
Ambulatorio
2,1 Km
Supermercati Supermercati
Punto Simply
1,4 Km
Supermercati
1,4 Km
Alimentari-Market
2,2 Km
Negozi Negozi
La Spiga d' Oro
790 m
Il Pane di Roberto
2,2 Km
Panificio Leonardi
2,7 Km
Bar Bar
Old time american bar
1,1 Km
Bar
2,1 Km
Ristoranti Ristoranti
pizza sprint
780 m
Albergo Ristorante Roma
780 m
Gallo Verde
1,5 Km
La Rustica Pizzeria Ristorante
1,6 Km
Agriturismo Altana del Motto Rosso
1,8 Km
Mostra tutto

Caratteristiche

Rif.:
61140178
Piano:
3 di 3 (Piano su più livelli)
Box:
2
Posti auto:
10
Balconi:
2
Terrazzi:
1
Mostra tutto
Prezzo Prezzo
€ 398.000
Rata mutuo Rata mutuo
€ 1.877 / mese
Spese annue Spese annue
€ 0
Proponi il tuo prezzoProponi il tuo prezzo

Altre caratteristiche

Classe Energetica

F
F
F
F
F
F
F
F
F
EP globale non rinnovabile:
2550.00 kW h/m² anno
EP globale rinnovabile:
123.00 kW h/m² anno
EP invernale del fabbricato:
EP estiva del fabbricato:
Anno di costruzione:
1980
Riscaldamento:
Autonomo
Tipo impianto:
A radiatori
Tipo alimentazione:
Metano

Ti interessa visionare l'immobile?

Fissa un appuntamento  Fissa un appuntamento

Richiedi informazioni

Clicca su Leggi per aprire l'informativa
* Questi campi sono obbligatori

Calcola il tuo mutuo

Semplice e senza impegno
Anticipo

( % )
Mutuo

( % )

pochi semplici passi

inserisci i tuoi dati
Questionario completato
Grazie per aver richiesto un appuntamento senza impegno con un nostro Consulente del Credito e Assicurativo.

Hai inserito correttamente tutti i dati necessari e a breve riceverai una e-mail con un link da convalidare per inviare i tuoi dati.
Affiliato
Gd23 Sas
Corso Roma, 61 28021 Borgomanero (NO)

Il nostro staff


  • Davide Gennari
    Affiliato

  • Fiorella Aliaj
    Coordinatrice
Corso Roma, 61 28021 Borgomanero (NO)
Zona: Borgomanero
Mostra su mappa
Orari: Dal lunedì al venerdì 09:00 - 12:30 / 15:00 alle 19:30. Il sabato 09:00 - 15:00.
Affiliato
Gd23 Sas
Corso Roma, 61 28021 Borgomanero (NO)

2025 Tecnocasa Franchising S.p.A. - P. IVA 08365160152 - Via Monte Bianco 60/A 20089 Rozzano (MI). Ogni agenzia ha un proprio titolare ed è autonoma. Privacy policy | Policy utilizzo | Cookie policy